Clínica Dental Fuentes-Vera en la Revista Tectónica - Murillo Arquitectos

Clínica Dental Fuentes-Vera en la Revista Tectónica

La materialidad y la luz: Clínica Dental Fuentes Vera.

Nos complace anunciar que nuestro proyecto de reforma para la Clínica Dental Fuentes-Vera (Valladolid) ha sido publicado en Tectónica bajo el título «La materialidad y la luz como elementos tangibles»

Enfoque: luz natural y materialidad tangible

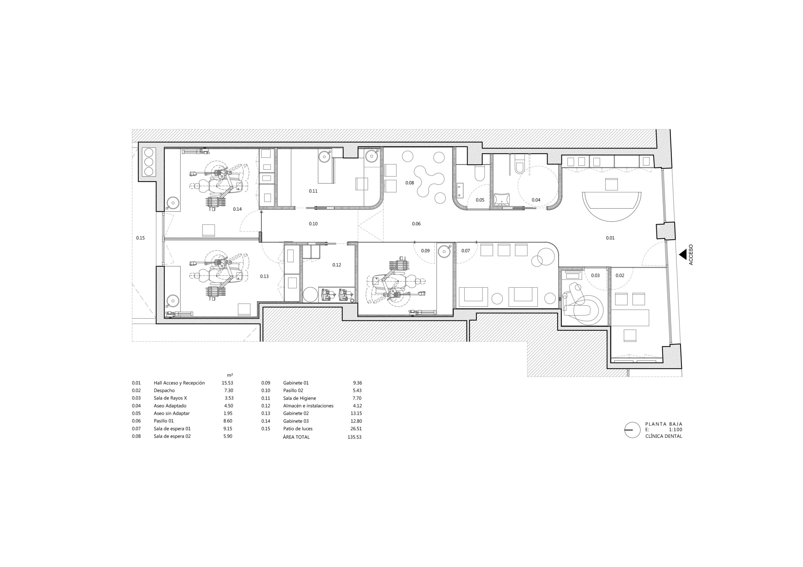
En esta intervención trabajamos sobre un local estrecho y alargado, optimizando la geometría para generar fluidez espacial a través de un cuidadoso juego de “llenos y vacíos”. Los volúmenes interiores —recepción, gabinetes y baños— se conciben como hitos matéricos dentro de un espacio diáfano y ordenado.

Materiales nobles y luz

  • Roble: los volúmenes centrales (baños, zona espera, señalética) están revestidos con chapa de roble sobre tablero MDF, aportando calidez visual y sensorial respecto al blanco predominante
  • Microcemento: aplicado en el mostrador de recepción, realza el carácter y la calidad del espacio con un acabado robusto y homogéneo
  • Cristal: las divisiones acristaladas permiten que la luz natural fluya desde la fachada hasta el interior e incluso los gabinetes, intensificando una atmósfera clara y acogedora

Reflexión final

Este proyecto reafirma nuestra filosofía: el diseño, más allá de lo visual, debe dialogar con la experiencia de uso. La elección de materiales como la madera y el microcemento, junto a la estrategia lumínica, construye un espacio racional, cálido y empático.

Enlace a publicación: La materialidad y la luz como elementos tangibles en la reforma para una clínica dental

C/ Padre Francisco Suárez 11, 3º Izq. 47006 Valladolid

info@murilloarquitectos.com

+34 662 5113 48