Recepción-cínica dental seny

CLÍNICA DENTAL SENY

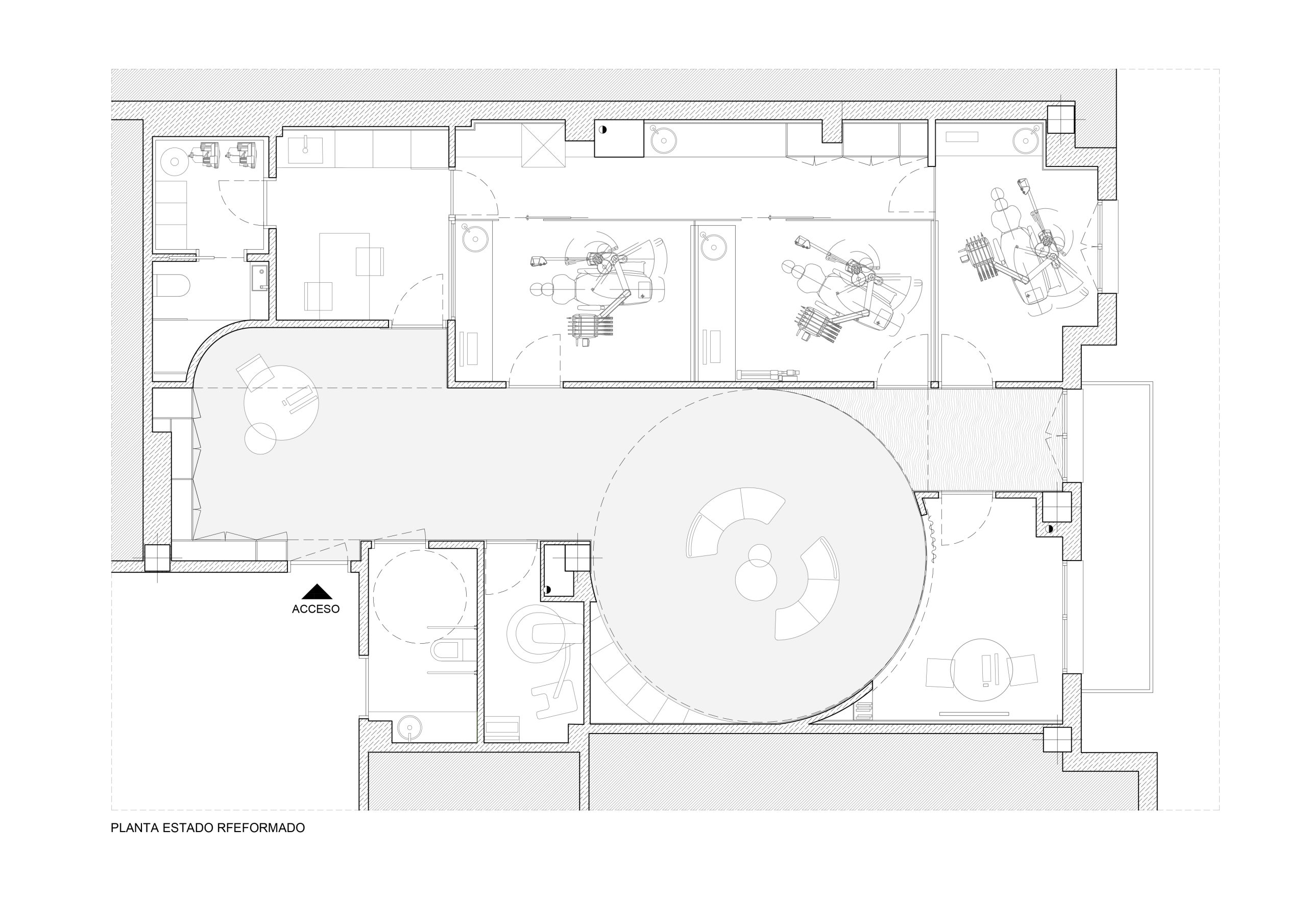
El proyecto de la Clínica Dental Seny se plantea como una reflexión sobre cómo la arquitectura puede transformar la experiencia tradicional de una clínica dental. Ubicada en el centro de Dénia, la intervención busca crear un espacio sanitario contemporáneo donde la calma, la claridad espacial y la materialidad natural contribuyen a generar confianza en el paciente desde el primer momento.

El diseño se aleja deliberadamente de la estética clínica convencional para construir una atmósfera cercana, silenciosa y luminosa.

Se organiza a partir de un espacio longitudinal de acceso que articula las distintas áreas de la clínica. Este recorrido central permite orientar fácilmente al paciente y genera una experiencia espacial clara y fluida.

Acceso-cínica dental seny
Acceso-cínica dental seny

El proyecto responde a las necesidades funcionales de una clínica dental actual, incorporando espacios para diagnóstico, tratamiento y atención personalizada, mientras mantiene una imagen arquitectónica coherente y serena.

El resultado es una clínica donde arquitectura, salud y bienestar se integran en un mismo espacio, demostrando cómo el diseño puede mejorar la experiencia sanitaria y redefinir la percepción del entorno clínico.

Ubicación
Dénia, Alicante
Año de finalización
2025
Categoría
Reforma Integral de Clínica Dental en Dénia, Alicante
Superficie
150 m²

Casos recientes

La reforma integral de la Clínica Dental MD transforma un local profundo, de geometría irregular y con escasa luz natural en un espacio sanitario luminoso, cercano y abierto a la ciudad. El proyecto surge de la voluntad de alejarse de

Serna Dental se concibe como un espacio minimalista donde la arquitectura transforma lo cotidiano en una experiencia sorprendente. Cada recorrido se revela progresivamente: lo que al inicio parece simple, poco a poco desvela nuevas sensaciones y perspectivas, convirtiendo la visita

Este proyecto parte de la intervención integral en un local de proporciones estrechas y alargadas, cuya morfología planteaba retos significativos en cuanto a espacio e iluminación. La propuesta arquitectónica responde con un interior diáfano, articulado en torno a un volumen

La reforma integral de esta clínica dental en Santander, Cantabria, es un ejemplo destacado de cómo el diseño arquitectónico puede mejorar significativamente tanto la funcionalidad del espacio como la experiencia de pacientes y profesionales. El proyecto fue desarrollado para el

La reforma integral de clínica dental promovida por la Dra. Mª Luisa Hernansanz ha sido diseñada para maximizar la luz natural y lograr una integración armoniosa con el entorno exterior. Gracias a sus dos fachadas completamente abiertas, esta clínica dental

Se ha realizado una reforma integral para una clínica dental en Villa del Prado (Valladolid), diseñada y ejecutada por un equipo experto en arquitectura sanitaria, liderado por un estudio de arquitectura especialistas en clínicas dentales. El proyecto se realizó para

Este proyecto de reforma integral de una clínica dental en Salamanca, ha sido concebido para combinar funcionalidad, estética y eficiencia en un espacio inicialmente complejo. Desde el inicio, se priorizó la entrada de luz natural y el uso de materiales

En el corazón de Andalucía, dentro de una de las emblemáticas Torres Hércules —obra del reconocido arquitecto Rafael de la Hoz—, se lleva a cabo la reforma integral de una Clínica Dental, una innovadora clínica dental ubicada en Cádiz. El

En el corazón del barrio Pinar de Jalón, en Valladolid, se llevó a cabo la reforma integral de una clínica dental, con el objetivo de transformar un local de planta cuadrada en un espacio diáfano, funcional y acogedor. El proyecto

La reforma integral de esta clínica dental, ubicada en el Paseo Zorrilla de Valladolid, supuso un reto arquitectónico resuelto con un enfoque que combina funcionalidad, sostenibilidad y estética. El proyecto fue desarrollado en colaboración con el arquitecto Roberto Valle, cuya

Esta clínica dental, ubicada en Humanes de Madrid, ha sido completamente renovada para transformar un local de dimensiones reducidas en un espacio moderno, funcional y acogedor. El proyecto incluye dos gabinetes y todas las áreas necesarias para el correcto funcionamiento

El Centro Odontológico Avanzado Amo & Conde, situado en Aguilar de Campoo (Palencia), es un proyecto de diseño y arquitectura de clínica dental desarrollado por Murillo Arquitectos, estudio especializado en la planificación y ejecución de clínicas dentales en España. El

Una clínica dental ubicada en la calle Teresa Gil, en pleno centro de Valladolid, ha sido objeto de una intervención puntual para mejorar su distribución, privacidad y experiencia del paciente. El proyecto se centra en reorganizar los espacios clave del

La reforma integral de esta clínica dental en Arroyo de la Encomienda, una localidad en crecimiento próxima a Valladolid, convierte un espacio existente en un centro odontológico moderno, funcional y acogedor. El diseño arquitectónico para clínicas dentales optimiza la distribución

El diseño de esta clínica dental moderna está basado en una estructura central curva que optimiza la distribución de las áreas clínicas y administrativas, mejorando la circulación y el flujo de trabajo del equipo odontológico. Esta planificación espacial eficiente garantiza

La Clínica Dental del Dr. José Luis Naval en Barbastro (Huesca) ha sido completamente transformada gracias a un proyecto de reforma integral y diseño de interiores desarrollado por Arquitectos especializados en clínicas dentales, cuyo objetivo ha sido redefinir por completo

El diseño de esta clínica dental en Arroyo de la Encomienda, municipio próximo a Valladolid, parte de un concepto fundamental en la arquitectura sanitaria: mejorar la eficiencia, privacidad y comodidad. A pesar de su tamaño compacto, el proyecto logra desarrollar

El proyecto de la Clínica Dental Seny se plantea como una reflexión sobre cómo la arquitectura puede transformar la experiencia tradicional de una clínica dental. Ubicada en el centro de Dénia, la intervención busca crear un espacio sanitario contemporáneo donde

Un local parcialmente reformado en el centro de Málaga ha sido transformado en una clínica dental moderna gracias a un proyecto de Arquitectos especializados en clínicas dentales, estudio especializado en arquitectura para clínicas en Málaga y Andalucía. La intervención abordó

Esta clínica dental en Valladolid, diseñada por Arquitectos especializados en clínicas dentales, es una transformación integral de un local estrecho en un espacio luminoso, cómodo y eficiente, ideal para tratamientos odontológicos avanzados. El diseño resuelve retos espaciales complejos para ofrecer

C/ Padre Francisco Suárez 11, 3º Izq. 47006 Valladolid

info@murilloarquitectos.com

+34 662 5113 48