Vivienda Miaja

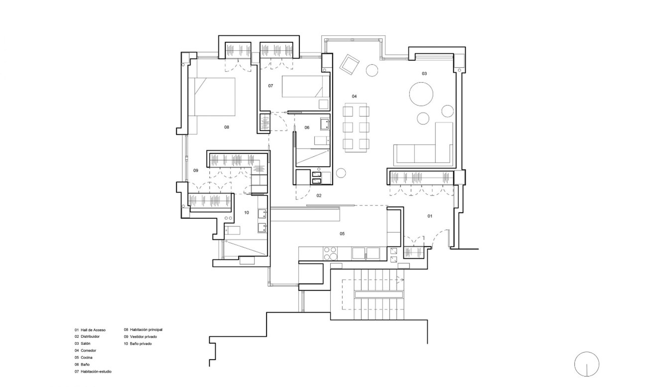
En pleno corazón de Valladolid, esta reforma integral busca redefinir el concepto de espacio habitable, combinando funcionalidad y estética a través de soluciones inteligentes y un diseño minimalista. La intervención, aunque de pequeña escala, maximiza la sensación de amplitud y luz natural, resaltando lo verdaderamente esencial en el hogar.

Se integraron armarios ocultos que actúan como paneles continuos, facilitando la compartimentación flexible y eficiente del espacio, adaptándose a las necesidades del día a día.

Para esta reforma integral, seleccionamos materiales que aportan modernidad y calidez: acero lacado en negro y madera DM lacada en blanco liso, creando un equilibrio perfecto entre diseño y funcionalidad.

Este proyecto refleja la visión y el compromiso con la calidad de Arquitectos especialistas en reformas integrales en Valladolid.

Ubicación
Valladolid
Fotografía
Cesar Sanmaniego
Año de finalización
2019
Categoría
Reforma Integral de Vivienda
Superficie
97 m²

Casos recientes

En el núcleo urbano de Cabeza del Buey, Badajoz, Murillo Arquitectos acomete una reforma integral que transforma por completo una vivienda tradicional, respetando su carácter original al tiempo que la adapta a las exigencias contemporáneas de uso, confort y espacialidad.

Situada cerca de la plaza de toros de Valladolid, la Vivienda Zorrilla 1 es el resultado de una cuidada reforma integral de piso en Valladolid, concebida para responder a las necesidades de una familia joven en busca de funcionalidad, calidez

En pleno corazón de Valladolid, este piso se transforma por completo a través de una reforma integral pensada para una familia joven que busca funcionalidad, claridad espacial y una atmósfera serena. El proyecto parte de una premisa clara: potenciar la

En pleno corazón de Valladolid, esta reforma integral busca redefinir el concepto de espacio habitable, combinando funcionalidad y estética a través de soluciones inteligentes y un diseño minimalista. La intervención, aunque de pequeña escala, maximiza la sensación de amplitud y

Se lleva a cabo una reforma integral de vivienda en Valladolid, diseñada para satisfacer las necesidades específicas de un músico y productor profesional, combinando funcionalidad, diseño a medida y una arquitectura contemporánea de alto nivel. El promotor y cliente del

Se desarrolla este proyecto de vivienda unifamiliar en Portillo (Valladolid), donde la arquitectura contemporánea se combina con la esencia constructiva tradicional de la zona, dando lugar a un espacio cálido, luminoso y plenamente adaptado a su entorno. La vivienda se

Este proyecto de casa de obra nueva en Valladolid, se organiza en torno a un patio central que articula la distribución de los espacios, diferenciando claramente la zona de día y la zona de noche. Uno de los rasgos más

Hemos transformado por completo esta vivienda situada en el Paseo Isabel la Católica de Valladolid, uno de los enclaves más singulares y representativos de la ciudad. El proyecto de reforma integral ha sido concebido para combinar diseño, confort y funcionalidad,

Como arquitectos especializados en viviendas unifamiliares en Valladolid, desarrollamos este proyecto en una zona residencial de baja densidad, dando forma a una casa moderna, sobria e introvertida que se diferencia de la arquitectura tradicional del entorno. Atendiendo a las necesidades

C/ Padre Francisco Suárez 11, 3º Izq. 47006 Valladolid

info@murilloarquitectos.com

+34 662 5113 48