Salón-comedor

Vivienda Portillo

Se desarrolla este proyecto de vivienda unifamiliar en Portillo (Valladolid), donde la arquitectura contemporánea se combina con la esencia constructiva tradicional de la zona, dando lugar a un espacio cálido, luminoso y plenamente adaptado a su entorno.

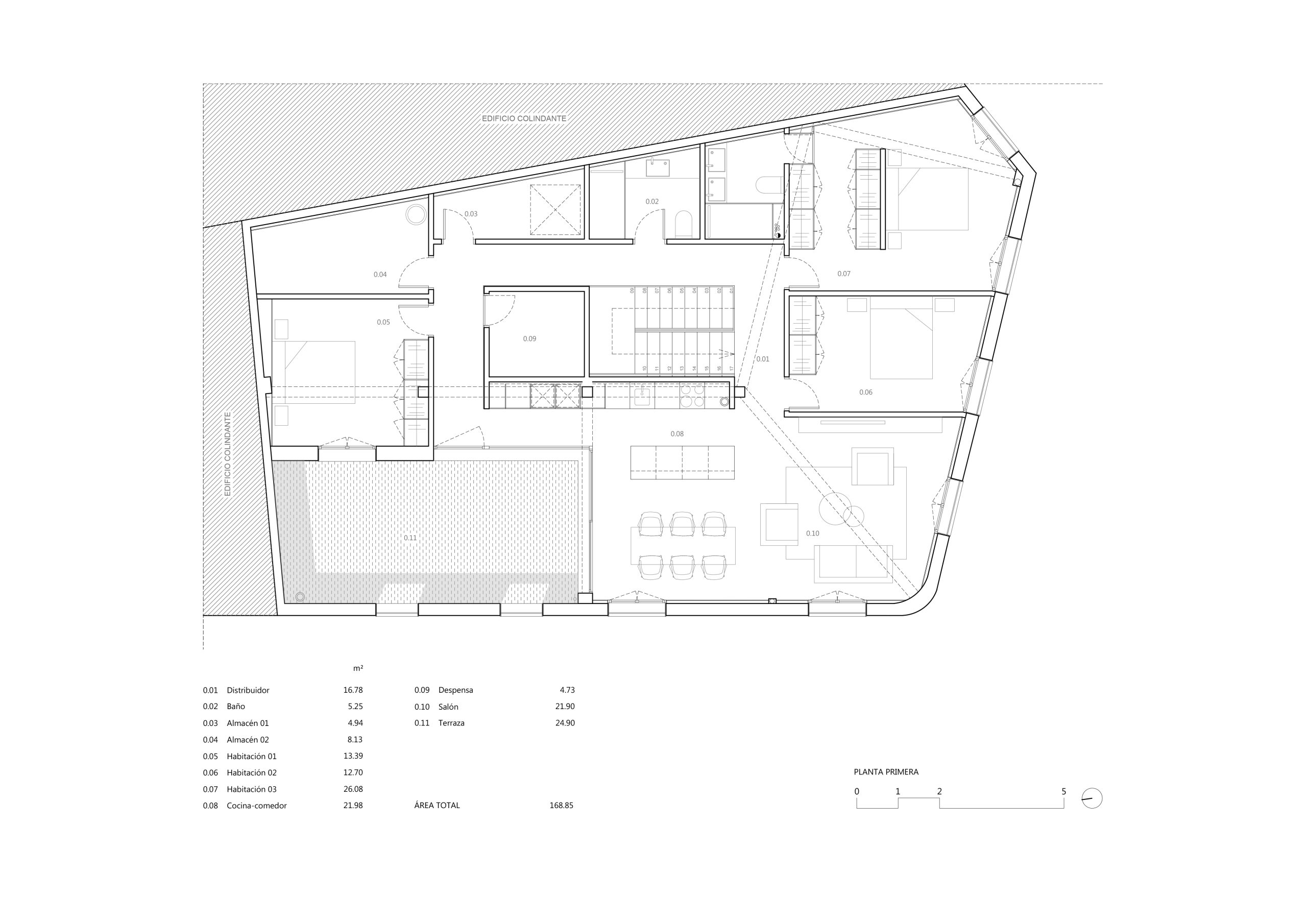
La vivienda se articula en torno a un patio exterior privado, que actúa como núcleo organizador del proyecto. Este espacio intermedio no solo aporta iluminación natural a las estancias principales, sino que genera una transición fluida entre interior y exterior, favoreciendo una forma de habitar más abierta y conectada con el clima de Valladolid.

El patio se concibe como una estancia más de la casa: un lugar de descanso, protegido y soleado, donde la arquitectura enmarca el cielo y potencia la sensación de intimidad. Las grandes carpinterías acristaladas permiten que el salón y la zona de día se abran completamente hacia este espacio, multiplicando la percepción de amplitud y continuidad espacial.

Planta primera
Sección

El interior de la vivienda se caracteriza por un espacio diáfano de salón, comedor y cocina, resuelto bajo una cubierta inclinada con estructura vista de madera. Este elemento aporta calidez, ritmo y una clara referencia a la arquitectura tradicional castellana, reinterpretada desde un lenguaje contemporáneo.

La entrada de luz natural, potenciada por la orientación y los grandes huecos, genera un ambiente confortable durante todo el año, reduciendo la necesidad de iluminación artificial y mejorando la eficiencia energética del conjunto.

Ubicación
Portillo (Valladolid)
Año de finalización
2026
Categoría
Reforma Integral de Vivienda
Superficie
170

Casos recientes

En el núcleo urbano de Cabeza del Buey, Badajoz, Murillo Arquitectos acomete una reforma integral que transforma por completo una vivienda tradicional, respetando su carácter original al tiempo que la adapta a las exigencias contemporáneas de uso, confort y espacialidad.

Situada cerca de la plaza de toros de Valladolid, la Vivienda Zorrilla 1 es el resultado de una cuidada reforma integral de piso en Valladolid, concebida para responder a las necesidades de una familia joven en busca de funcionalidad, calidez

En pleno corazón de Valladolid, este piso se transforma por completo a través de una reforma integral pensada para una familia joven que busca funcionalidad, claridad espacial y una atmósfera serena. El proyecto parte de una premisa clara: potenciar la

En pleno corazón de Valladolid, esta reforma integral busca redefinir el concepto de espacio habitable, combinando funcionalidad y estética a través de soluciones inteligentes y un diseño minimalista. La intervención, aunque de pequeña escala, maximiza la sensación de amplitud y

Se lleva a cabo una reforma integral de vivienda en Valladolid, diseñada para satisfacer las necesidades específicas de un músico y productor profesional, combinando funcionalidad, diseño a medida y una arquitectura contemporánea de alto nivel. El promotor y cliente del

Se desarrolla este proyecto de vivienda unifamiliar en Portillo (Valladolid), donde la arquitectura contemporánea se combina con la esencia constructiva tradicional de la zona, dando lugar a un espacio cálido, luminoso y plenamente adaptado a su entorno. La vivienda se

Este proyecto de casa de obra nueva en Valladolid, se organiza en torno a un patio central que articula la distribución de los espacios, diferenciando claramente la zona de día y la zona de noche. Uno de los rasgos más

Hemos transformado por completo esta vivienda situada en el Paseo Isabel la Católica de Valladolid, uno de los enclaves más singulares y representativos de la ciudad. El proyecto de reforma integral ha sido concebido para combinar diseño, confort y funcionalidad,

Como arquitectos especializados en viviendas unifamiliares en Valladolid, desarrollamos este proyecto en una zona residencial de baja densidad, dando forma a una casa moderna, sobria e introvertida que se diferencia de la arquitectura tradicional del entorno. Atendiendo a las necesidades

C/ Padre Francisco Suárez 11, 3º Izq. 47006 Valladolid

info@murilloarquitectos.com

+34 662 5113 48