murillo-arquitectos-vivienda-zorrilla-1-salon

Vivienda Zorrilla 1

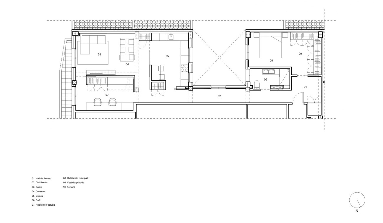
Situada cerca de la plaza de toros de Valladolid, la Vivienda Zorrilla 1 es el resultado de una cuidada reforma integral de piso en Valladolid, concebida para responder a las necesidades de una familia joven en busca de funcionalidad, calidez y calidad espacial.

Desde el inicio, el diseño prioriza una clara separación entre las zonas de día y de noche. Las estancias principales —salón, comedor y cocina— se abren al exterior para captar la mayor cantidad de luz posible, generando una atmósfera luminosa y conectada con el entorno urbano.

murillo-arquitectos-vivienda-zorrilla-1-detalle-techos
murillo-arquitectos-vivienda-zorrilla-1-planta

El proyecto ha sido desarrollado por un estudio especializado en arquitectura contemporánea y reformas integrales en Valladolid. Con la Vivienda Zorrilla 1, el equipo reafirma su enfoque basado en la mejora de la vida cotidiana a través del diseño: una arquitectura doméstica que no busca imponerse, sino acompañar, adaptarse y aportar bienestar a quienes la habitan.

Esta reforma integral de piso en Valladolid, más allá de su localización estratégica cerca de la plaza de toros, destaca por su equilibrio entre estética, funcionalidad y flexibilidad. 

Ubicación
Valladolid
Fotografía
Cesar Sanmaniego
Año de finalización
2021
Categoría
Reforma Integral de Vivienda
Superficie
102 m²

Casos recientes

En el núcleo urbano de Cabeza del Buey, Badajoz, Murillo Arquitectos acomete una reforma integral que transforma por completo una vivienda tradicional, respetando su carácter original al tiempo que la adapta a las exigencias contemporáneas de uso, confort y espacialidad.

Situada cerca de la plaza de toros de Valladolid, la Vivienda Zorrilla 1 es el resultado de una cuidada reforma integral de piso en Valladolid, concebida para responder a las necesidades de una familia joven en busca de funcionalidad, calidez

En pleno corazón de Valladolid, este piso se transforma por completo a través de una reforma integral pensada para una familia joven que busca funcionalidad, claridad espacial y una atmósfera serena. El proyecto parte de una premisa clara: potenciar la

En pleno corazón de Valladolid, esta reforma integral busca redefinir el concepto de espacio habitable, combinando funcionalidad y estética a través de soluciones inteligentes y un diseño minimalista. La intervención, aunque de pequeña escala, maximiza la sensación de amplitud y

Se lleva a cabo una reforma integral de vivienda en Valladolid, diseñada para satisfacer las necesidades específicas de un músico y productor profesional, combinando funcionalidad, diseño a medida y una arquitectura contemporánea de alto nivel. El promotor y cliente del

Se desarrolla este proyecto de vivienda unifamiliar en Portillo (Valladolid), donde la arquitectura contemporánea se combina con la esencia constructiva tradicional de la zona, dando lugar a un espacio cálido, luminoso y plenamente adaptado a su entorno. La vivienda se

Este proyecto de casa de obra nueva en Valladolid, se organiza en torno a un patio central que articula la distribución de los espacios, diferenciando claramente la zona de día y la zona de noche. Uno de los rasgos más

Hemos transformado por completo esta vivienda situada en el Paseo Isabel la Católica de Valladolid, uno de los enclaves más singulares y representativos de la ciudad. El proyecto de reforma integral ha sido concebido para combinar diseño, confort y funcionalidad,

Como arquitectos especializados en viviendas unifamiliares en Valladolid, desarrollamos este proyecto en una zona residencial de baja densidad, dando forma a una casa moderna, sobria e introvertida que se diferencia de la arquitectura tradicional del entorno. Atendiendo a las necesidades

C/ Padre Francisco Suárez 11, 3º Izq. 47006 Valladolid

info@murilloarquitectos.com

+34 662 5113 48